Banner

2-Bedroom Apartment in Paphos For Sale

hello

For Sale 2 Bed Flat / Apartment 

2-Bedroom Apartment in Paphos For Sale €350,000

Property Features

Location:
City Center, Paphos, 8047
Own Code: ANGKLEPAF
State VAT: Applicable
Bedrooms:2
Bathrooms:2
Parking:yes

Contact Agent



About the Property

Discover a contemporary 2-bedroom apartment in central Paphos, offering modern living spaces and convenient access to city amenities.

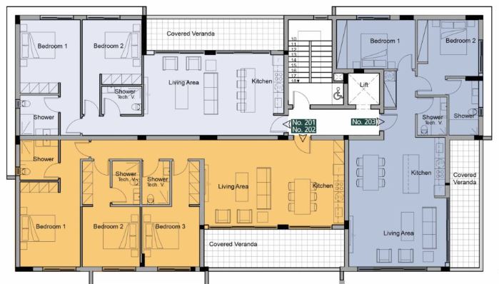
This modern 2-bedroom apartment in central Paphos is designed for comfortable urban living. Located in a prime area, it offers easy access to shopping centers, restaurants, and cultural attractions. The apartment features an open-plan layout, maximizing space and natural light.

The living area seamlessly connects to a covered veranda, providing a perfect spot for relaxation. The kitchen is equipped with contemporary appliances, catering to the needs of modern lifestyles. Both bedrooms are well-sized, offering ample storage and comfort.

Residents can enjoy the communal swimming pool, ideal for unwinding during warm days. The apartment also includes covered parking, ensuring convenience and security.

With its strategic location, this apartment is just minutes away from the beach, healthcare facilities, and educational institutions. Whether you’re seeking a permanent residence or a vacation home, this property offers a blend of comfort and accessibility in the heart of Paphos.

Whether you’re a first-time buyer, looking for a holiday home, or an investor seeking a rental opportunity, this apartment checks all the boxes.

Contact us today for more information or to schedule a viewing.

Whatsapp

TOTAL COVERED: 143.16 m2
 
INTERNAL COVERED AREA: 92.26 m2
 
COVERED VERANDAS / TERRACES: 15.70 m2
 
Covered Parking: 11.50m2
 
Common Areas: 23.70m2

Property Photos

Floorplans

Enquire / Book Viewing

Contacting

  • arrange a viewing
  • arrange a valuation
  • be sent further property details
  • register for property updates

Contact Details:

Disclaimer:All information is deemed reliable but not guaranteed. Neither listing estate agent(s) or information provider(s) shall be responsible for any typographical errors, misinformation, misprints and shall not be held responsible.

Buyletnow.com owned by Bowdon Realty Ltd registered real estate agent No. 1020 and License no 341/E